安平縣艾瑞金屬絲網有限公司
聯系人:臧經理
手機:13102786273
郵箱:1527528951@qq.com
地址:河北省安平縣城東新工業園緯二路18號
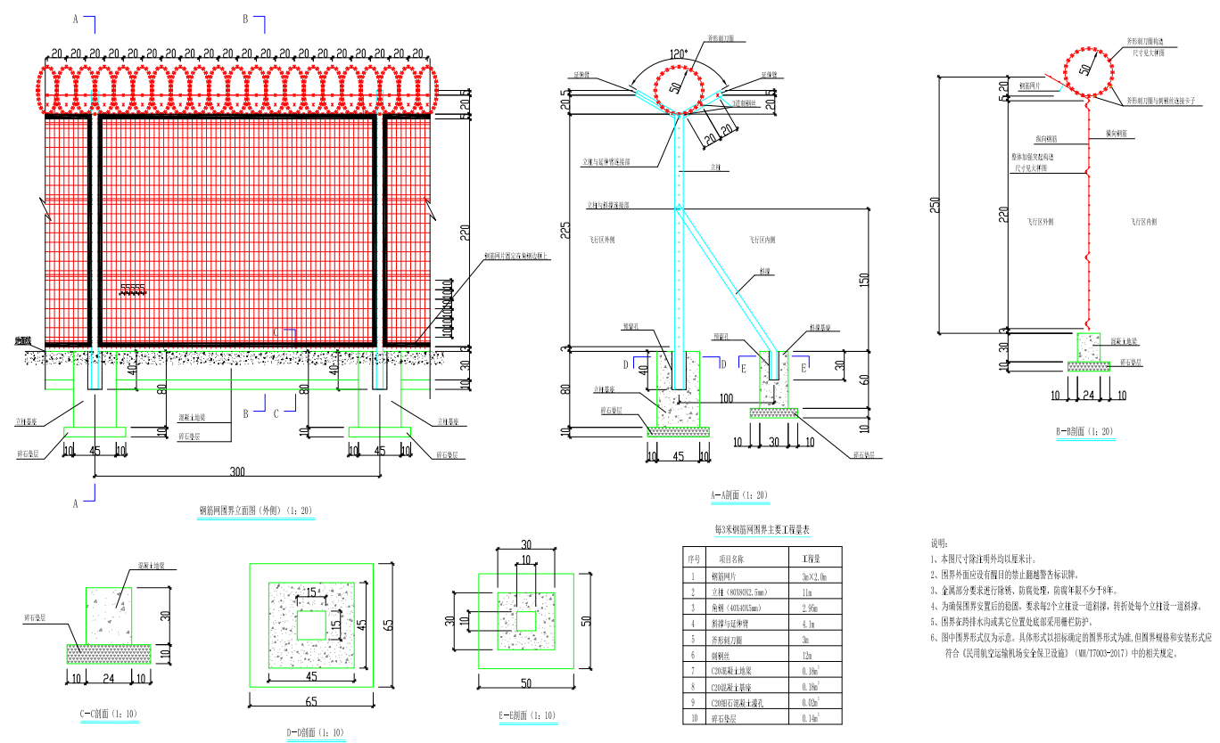
飛機場區金屬網圍欄圖紙分析
添加時間:2023-07-11 點擊量:

上圖為飛機場區金屬網圍欄的圖紙,以此款產品為例,進行詳細分析。
1.本圖尺寸除注明外均以cm計,比例如圖所示。
2.新建鋼網圍界所在平面位置詳見“道施01”。
3.圍界具體尺寸應符合《民用運輸機場安全保衛設施》(MH/T7003-2017)中的相關規定。為確保圍界安置后的穩固,每2個立柱設一道斜撐、轉折處每個立柱設一道斜撐。
4.鋼筋網采用冷拉低碳鋼絲電焊網并經鍍層防腐處理, 要求防腐處理前的冷拉低碳鋼絲直徑不小于5mm。抗拉強度應達到640MPa,焊點抗拉力應達到2063N。立柱、斜撐及延伸管作內外防腐處理。刺刀圈內芯為直徑2.5mm的冷拉低碳鋼絲并經防腐處理,外面裹覆經防腐處理的刀片圈,刀片的刀口寬度及間距均為10~15mm。
5.立柱截面尺寸為80mmx80mmx2.5mm,斜增和延伸管截面尺寸為50mmx50mmx2.0mm,鋼筋網片網格尺寸為100mmx50mm(中到中),刺刀圈直徑不小于500mm。
6.立柱頂部應加蓋柱帽,立柱與鋼筋網、立柱與斜撐及立柱與延伸臂的連接采用防盜形式并經防腐處理,圍界整體防腐年限應達到8年,
7.網片邊框采用40mmx40mmx5mm角鋼,鋼筋網伸入圍界邊框并與邊框角鋼焊接牢固,圍界邊框與支撐柱用螺栓栓接牢固。邊框離效間隙不大于3cm。
8.基座采用C20水泥混凝土預制,預留孔在立柱與斜撐安放后用C20細石混凝土灌實;地梁采用MU15燒結普通磚用M7.5水泥砂漿砌筑或C20素混凝土現澆;墊層采用粒徑為0~5cm的級配碎石。
9.碎石墊層下土基及開槽兩側回填土壓實度要求不小于0.90(重型壓實法)。
10.圍界外側設置若干醒目的禁止翻越警告標識牌 ,標識牌應安裝牢固 ,間距宜不大于150m。
11、圖中圍界形式僅為示意。具體形式以招標確定的圍界形式為準。
如果您想了解更多,可來電咨詢!!!
標簽: 飛機場區金屬網圍欄、 機場飛行區鋼筋網圍界、 新型鋁包鋼機場圍界、 機場隔離鋼筋網圍界、 機場圍界網隔離、 飛行區鋼筋網圍界、




飛行區鋼筋網圍界
機場鋼筋網圍界生產廠家
機場鋁包鋼圍界工程案例
鋁包鋼機場圍欄網硬度分析 
